物件の特徴
主な設備
電気
公営水道
公共下水
プロパンガス
個別プロパン
カウンターキッチン
システムキッチン
ユニットバス
浴室乾燥機
トイレ2箇所
温水洗浄便座
室内洗濯機置場
洗髪洗面化粧台
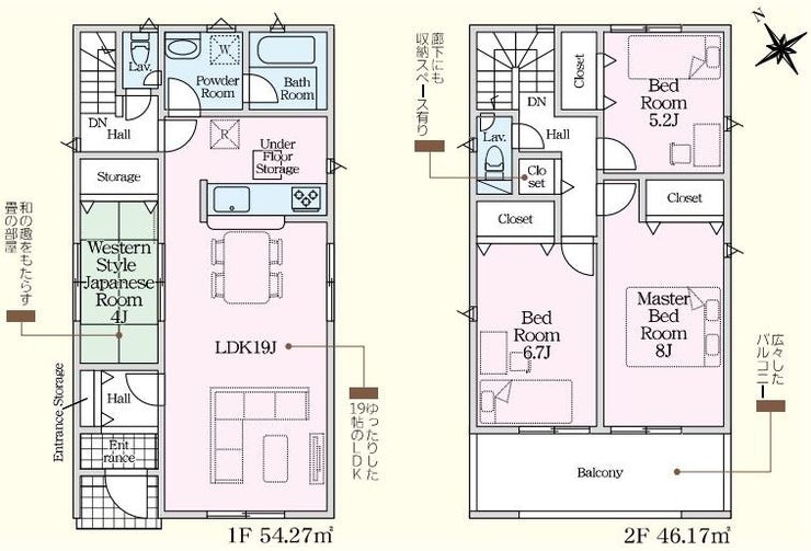
LDK18畳以上
床下収納
全居室収納
主な特徴
セットバック済
南側道路面す
2階建
・駐車2台可能(車種による)!
・全居室収納付き!
・収納スペース充実!
・LDK広々約19帖!
*ライフインフォメーション*
・JR東海道本線「相見」駅:徒歩約39分
・六ツ美南部小学校:徒歩約27分
・六ツ美中学校:徒歩約31分
・フェルナ福岡店:徒歩約6分
・セブンイレブン岡崎福岡町店:徒歩約8分
・バロー 福岡店:徒歩約11分
・ワッツ 福岡店:徒歩約11分
・ドミー福岡店:徒歩約13分
・福岡南保育園:徒歩約12分
・福岡郵便局:徒歩約19分
・みやこ認定こども園:徒歩約20分
・ザ・ビッグエクスプレス 福岡店:徒歩約22分
・JAあいち三河 福岡支店:徒歩約20分
物件概要
| 価格 | 3,190万円 | 間取り | 4LDK |
|---|---|---|---|
| 物件種別 | 新築一戸建て | ||
| 所在地 | 愛知県岡崎市国正町字竹ノ下 1号棟 | ||
| アクセス | JR東海道本線『相見』 徒歩39分 (約3120m) |
||
| 建物面積 | 100.44㎡ | 駐車場 | あり 普通:2台 |
| 築年月 | 2026年(令和8年)07月予定 | 建築確認 | 第HPA-26-03745-1号 |
| 建物構造 | 木造 2階建 | 工法 | |
| 主要採光 | バルコニー | ||
| 保証・評価 | |||
| 分譲情報 | 【販売戸数】:4戸 |
||
| 土地面積 | 180.26㎡(54.52坪) | 接道 | 南側(公道)幅 約4.0m |
| 私道 | セットバック | 済 | |
| 地目 | 宅地 | 地勢 | |
| 権利 | 所有権 |
||
| 都市計画 | 調整区域 |
用途地域 | 指定無 |
| 建ぺい/容積率 | 60% / 160% | 土地国土法 | |
| 許可番号 | 建築基準法 | ||
| 法令制限 | 宅地造成工事規制区域・法22条区域・最低敷地面積180㎡ | ||
| 小学区 | 六ツ美南部小学校 徒歩27分 (約2113m) | 中学区 | 六ツ美中学校 徒歩30分 (約2401m) |
| 現況 | 建築中 | 引渡 | 期日指定:2026年07月 |
| その他費用 | |||
| 周辺環境 | フェルナ福岡店 徒歩6分 (約450m) セブンイレブン岡崎福岡町店 徒歩8分 (約590m) バロー 福岡店 徒歩11分 (約860m) ワッツ 福岡店 徒歩11分 (約880m) ドミー福岡店 徒歩13分 (約1020m) 福岡南保育園 徒歩12分 (約890m) 福岡郵便局 徒歩19分 (約1510m) みやこ認定こども園 徒歩20分 (約1550m) ザ・ビッグエクスプレス 福岡店 徒歩22分 (約1690m) JAあいち三河 福岡支店 徒歩20分 (約1550m) |
||
| 備考 | ※TVアンテナ・網戸・居室照明・カーテンレール・雨戸別途。 ※敷地内に電柱及び支線が入る場合があります。 |
||
| 物件番号 | 4687817 | 取引態様 | 媒介 |





























岡崎市国正町の新築戸建です!駐車2台可能(車種による)!全居室収納付きで収納スペース充実しております!リビング広々19帖!カウンターキッチンでリビングを見渡せます!◎